Opening in 2026
The Preston Historical Society (PHS) repurposed the former Dairy & Farm building located near the Preston Trailhead into the Preston Depot Museum and Riverfront Center (DMRC). The museum will proudly display and preserve Preston’s historical artifacts, creating a draw for locals and tourists alike.
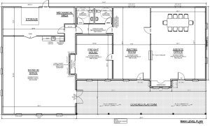
The building includes a rentable space for family gatherings or business meetings, ADA restrooms, a covered portico, and green space suitable for hosting outdoor events.
——–> Click here to see the Historic Campus & Riverfront Master Plan.
PHS and its members spent three years preparing for this project. PHS was awarded two grants totaling $20,000 from the Southern Minnesota Initiative Foundation (SMIF). To match these grants, PHS obtained additional grants, provided contributions from their funds, and garnered countless volunteer hours in planning and organizing that altogether totaled over $30,000 in consulting and design work, three years of committee discussion, and thousands of volunteer hours.
The estimated total project cost was $400,000, excluding the additional cost of furnishings and displays. The City of Preston is leasing the space to PHS at no cost. From July 2024-December 2024, PHS raised the $400,000, thanks to our generous community, F&M Community Bank, the Christianson Family Fund, and numerous grant funding.
MEMORIAL BRICKS
Our brick fundraising efforts continue to fund the interior furnishings, displays and operating costs. If you would like to purchase a customizable engraved brick, you can pick up order forms at F&M Community Bank in Preston or other Preston businesses. Put your order in for permanent advertising, memorializing a loved one, or honoring someone special!
- 4” x 8” brick – $100
- 8” x 8” brick – $200
Questions? Email us at: prestonhistoricalsociety@prestonmnhistory.com
DMRC Fundraising Members:
Alison Leathers – Chair | Sheila Craig | Barb Mielke | Jon DeVries | Steve Hall














